View Q&A



Old AGT Double Blockout

Question
State IN
Description Text

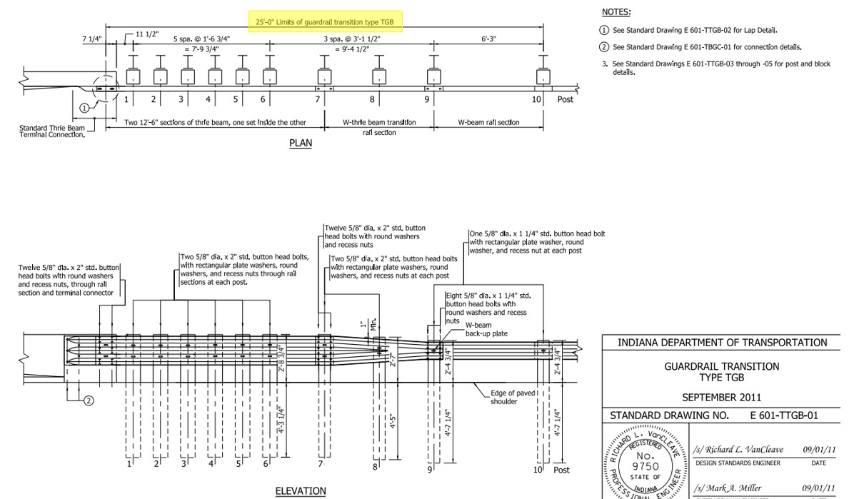
Scott, we had a question come in from construction, where there is a conflict between our AGT posts and a curb and gutter section.  Increasing the blockout depth from 7” to 12” would eliminate the conflict.  The AGT is a Guardrail Transition Type TGB (link) with steel tube blockouts, also see picture below (yellow highlighted area).  Given sight constraints we cannot use Midwest’s MGS AGT.



 



We reviewed TRP-03-69-98, http://mwrsf.unl.edu/researchhub/files/Report61/TRP-03-69-98.PDF, completed at your facility.  This report seems to be testing our Guardrail Transition Type TGB.



Given:




  • the above report,

  • today steel or wood posts can be used within a run of guardrail (not intermixed) with wood or composite blockout, and

  • the use of double blockouts (16 inches) is acceptable for an entire run of guardrail,



could we conclude that the use of a 12” deep wood blockout, see picture below, could replace our steel tube blockouts within the INDOT Guardrail Transition Type TGB, see picture below?



Below the pictures, I have included a summary of our review of the report TRP-03-69-98, if you are interested.



Would this question be something you could answer today or tomorrow, or will it take you longer given your workload or having to review the report?    



Below is a summary of our review of report TRP-03-69-98, http://mwrsf.unl.edu/researchhub/files/Report61/TRP-03-69-98.PDF, if you are interested.



Crash test 1, completed on a similar system to INDOT’s steel tube AGT (INDOT uses 7 ft posts where the crash test 1 used 6 ft post), it seems there was significant damage to the vehicle and it intruded into the adjacent traffic lane, but the occupant risk values were within the acceptable limits (PDF pages 59 and 58).  It does mention later that the performance may have been due to low post-soil forces, PDF page 69.



In test 2 they corrected the soil, lengthened the posts, kept the steel tube blockouts, and changed the shape of the concrete approach slab PDF pages 70 and 71.  PDF page 87, this system passed NCHRP-350 criteria with satisfactory and Marginal performance, PDF page 88.



In test 3 they moved to a 6ft wood post and wood blockouts with less embedment and the top of the blockout, within the thrie beam section, was 3 inches above the top of the wood post.  This test failed similar to test 1, PDF page 95.



In test 4 they again used wood posts and blockouts but the wood posts were 7 ft, the extra length increased the embedment and put the top of the blockout at the top of the post in the thrie beam section, PDF page 110. PDF page 126, this system passed NCHRP-350 criteria with satisfactory and Marginal performance, PDF page 127.



Thank you for your consideration.  Katherine



 


MASH
TL-3

Approach Guardrail Transitions (AGTs)


Blockout

Date May 22, 2025
Previous Views (28) Favorites (0)
Attachment indot-1.jpg Attachment indot-2.jpg Attachment indot-3.jpg
Response
Response
(active)

The use of 12” deep blockouts with in AGT is considered crashworthy, even if the testing/evaluation was conducted with shorter blocks.  Many DOTs have elected to use 12” blockouts within AGTs for various reasons, including avoiding curb-post interference and keeping a straight line among all posts (AGT, w-to-thrie transition region, and adjacent MGS with 12” blockouts).  12” blockouts have not shown to create any issues as compared to 7” or 8” blockout, and the deeper blockouts would reduce the amount of vehicle snag on the posts.  Thus, the use of 12” blockouts within an AGT is an accepted practice.


Date May 23, 2025
Previous Views (28) Favorites (0)
Response
Response
(active)

As we are making sure everything will detail out ok, we just wanted to clear up another question.  Currently on our TGB details there is a one specialty blockout length on the post that falls within the center of the Thrie Beam to W-Beam transition, see post 8 below.  Would it be acceptable to use the same block for post 8, that is used for posts 1 through 7?  The blockout will hang below the steel transition section about 2 inches.  Just to let you know, our detail show that post 8 will be driven deeper to keep the 1inch dimension between the top of post and top of the steel transition section, see picture below.  We saw in some other crash tests this blockout did hang lower but we were not sure if there is a difference with your tests being an asymmetric transitions and our transition being symmetric.  Thank you


Date May 25, 2025
Previous Views (21) Favorites (0)
Attachment indot-4.jpg
Response
Response
(active)

It looks a little goofy, but having the bottom of the block extend from the bottom of the w-to-thrie section should not cause a problem as long as you are using standard blockouts without routered sides.  The routered sides would lock the block in place and become a snag hazard.  Not routered blocks with a single blot attachment will spin when impacted, thus mitigating the snag concern.

 


Date May 26, 2025
Previous Views (27) Favorites (0)